Dražice Akumulační nádrž bez izolace NAD 500 v1 (TJ 6/4)

Výrobce: Dražice

Doporučená cena:
Naše cena bez PHE:
Ušetříte: %

Naše cena včetně DPH a PHE:
Cena bez DPH:
Celková cena v Eurech:

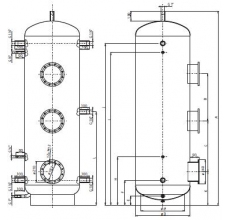
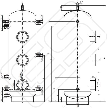
Charakteristika akumulačních nádrží

Izolace Symbio LB 100mm NAD(O)500v1v4v5
(v1v2v3) cena 7 500,-Kč.s DPH .

Izolace Cella PP 80mm NAD(O)500v1v4v5(v1v2v3)
cena 5 100,-Kč.s DPH .

Akumulační nádrže slouží k akumulaci přebytečného tepla od jeho zdroje.

Zdrojem může být:

kotel na tuhá paliva
tepelné čerpadlo
solární kolektory
krbová vložka atd.

Některé typy nádrží dovolují kombinovat i zapojení více zdrojů.

Nádrže typu NAD slouží pouze k ukládání tepla v topném systému, typ NADO dovoluje i přímý ohřev užitkové vody ve vnitřní smaltované nádobě nebo její předehřev pro další ohřívač vody. Trubkové výměníky nelze použít pro průtokový ohřev teplé užitkové vody.

Vše závisí na teplotě topné vody, která se akumuluje v nádrži. Zapojení s kotlem většinou dovoluje přímo ohřev TUV ve vnitřní nádrži na požadovanou teplotu, naopak zapojení na solární kolektory nebo tepelné čerpadlo TUV jen předehřeje a je nutné zařadit další (například) elektrický ohřívač vody, který dohřeje vodu na požadovanou teplotu nebo do akumulační nádoby namontovat elektrický dohřev, který umožňuje elektrická topná jednotka TJ 6/4" nebo topná příruba TPK.

Zařazení akumulační nádrže do topného systému s kotlem na tuhá paliva umožňuje optimální chod kotle na příznivé teplotě při provozu kotle.

Pro zvýšení životnosti nádrže doporučujeme používat jako topné médium upravenou vodu, destilovanou vodu, dále je vhodné přidávat přípravky omezující korozi (inhibitory).
Příslušenství akumulačních nádrží

Tepelná izolace

Doplňkem je tepelná izolace (viz schema) – polyesterové rouno o síle 100 mm. Součástí jsou horní kryt, kryty přírub a krytky otvorů. Izolace je dodávána samostatně zabalena.Podrob­nosti k izolaci v letáku nebo katalogu.

Topné jednotky

Dalším příslušenstvím akumulačních nádrží je přírubová topná jednotka TPK a šroubovací elektrická topná jednotka TJ 6/4'.

Titanová bezúdržbová anoda

Vnitřní smaltovaná nádoba pro přípravu užitkové vody v akumulačních nádržích řady NADO obsahuje obětovanou hořčíkovou anodu, která se rozpuští. Její životnost je přibližně dva roky. Je možné ji na objednání vyměnit za anodu s cizím zdrojem napětí — bez údržby (viz návod k instalaci a obsluze).

Technické parametry

TypNAD 250 v1NAD 500 v1NAD 750 v1NAD 1000 v1
Objem [l] 250 500 750 1 000
Maximální tlak nádoby [MPa] 0,3 0,3 0,3 0,3
Maximální teplota topné vody [°C] 90 90 90 90
Hmotnost [kg]   95 116 144

Soubory ke stažení

  • NAD.pdf (PDF; 1.11 MB)
    Návod k použití
Parametry zboží Dražice Akumulační nádrž bez izolace NAD 500 v1 (TJ 6/4)
Obecné parametry
Hmotnost (kg) 95
Objem (l) 500
Záruka (měsíců) 36
 

Zboží 2. jakosti

ARISTON II.jakost BLU ECO EVO 100 (AKCE)

ARISTON II.jakost BLU ECO EVO 100 (AKCE)

Cena včetně DPH: 2 590,- Kč

Nejste detailisti a chcete ušetřit? Vyberte si z nabídky zboží 2. jakosti s lehce poškozeným obalem nebo výrobkem za výrazně nižší cenu! Zboží je nové, nejedná se o bazar!

Nejprodávanější zboží

II.JAKOST SITAM 80,ECOFIX 80,PERLA 80 (poškoz.kus)

Cena včetně DPH: 1 690,- Kč


II.JAKOST SITAM 100,ECOFIX 100,PERLA 100 (poškoz.kus)

Cena včetně DPH: 1 790,- Kč


Dražice ND termostat OKCE 3 pin

Cena včetně DPH: 222,- Kč

Nevíte si rady? Zeptejte se nás!

Jsme zde pro Vás!

E-mail: info@elektrosolid.cz

Mobil: +420 731 713 581

Telefon: +420 241 411 611